Description
La communauté autour de Mgr Pierre-Yves Michel.
Cette vocation s’incarne dans une vie de silence et de solitude (avec l’appel à vivre en ermitage), de prière, mais aussi une forte communion fraternelle à l’école de la Vierge Marie. Sur cette terre de contemplation et de charité, les activités quotidiennes comportent le travail, l’accueil et l’écoute spirituelle (confession, prédication…), la mission (interventions ponctuelles en paroisse, lycées et collèges, pèlerinages…).
A la communauté religieuse proprement dite se rattache des familles et des célibataires et des prêtres diocésains vivant de l’esprit du Carmel de Marie Vierge Missionnaire au cœur du monde.
La communauté est reconnue par l’état français comme Association des Amis du Carmel de la Vierge Missionnaire (association loi 1901).
Le Pradier
Au pied de la montagne de la Lance
NOTRE PROJET
Pourquoi ?
Nous vivons des menaces d’une dimension jamais connue jusqu’ici… « La première urgence est d’implorer Dieu pour le don de la paix… », disait Saint Jean-Paul II. Notre monde est en crise… Crise financière, mais surtout crise intérieure, crise du « sens » de la vie, de l’identité profonde de l’Homme. Le rythme trépidant de notre société nous fait perdre notre dimension intérieure et spirituelle en la noyant dans le bruit, le stress, une solitude profonde que maquillent les moyens de communication sociale, jusqu’à des désespoirs profonds… Pour ne pas faire naufrage, notre civilisation a un besoin urgent de prière et de paix, de partage et d’amour, car : « la véritable révolution consiste uniquement dans le fait de se tourner vers Dieu. Qu’est-ce qui pourrait bien nous sauver, sinon l’amour ? » (Benoît XVI). Nous avons besoin d’un « supplément d’âme » pour faire face aux défis actuels. Nous ne sauverons pas le monde actuel sans promouvoir la dimension spirituelle de l’Homme… Nous n’aurons pas d’avenir sans l’espérance que seul donne le Christ, Ami et Sauveur de l’Homme…
Nous n’aurons pas la paix sociale et planétaire sans la prière qui fait pleuvoir l’Amour de Dieu et réconcilie les hommes…
« Ce sont les adorateurs silencieux qui préparent le monde nouveau du troisième millénaire ». (Saint Jean-Paul II)
Face à tous ces défis, depuis 1997, encouragé et béni par Saint Jean-Paul II en 2001, le Carmel de Marie Vierge Missionnaire veille en prière sur la montagne de la Lance. Il y accueille les chercheurs de Dieu, qui y trouvent un lieu de prière, de paix, de beauté, de silence et de contemplation, qui recréé le cœur, dans une ambiance familiale.
Ce projet de longue haleine a été prié et mûri en Eglise durant plusieurs années et se fera en plusieurs étapes. Une première étape a commencé en 2012 par le début de la construction des ermitages. Le permis de construire a été obtenu pour les 9 ermitages, pour 5 ans : les 9 ermitages doivent donc être terminés d’ici fin août 2017.
Leur structure nécessite de les construire trois par trois. Les trois premiers ont été construits en 2012-2013, et trois autres en 2015. Il en reste donc trois à réaliser.
- à une aventure spirituelle de prière pour la paix du monde,
- à faire revivre l’idéal primitif (13ème siècle) de l’Ordre du Carmel : une communauté d’ermites groupés autour d’une église, vivant ensemble la solitude et la prière et partant régulièrement annoncer l’Evangile aux peuples environnants. Redonnez vie à un grand monument de l’histoire de l’Eglise !
- à un projet écologique entièrement en bois, qui respecte l’harmonie d’un site exceptionnel et de son environnement,
- à la préservation d'une terre d’accueil spirituelle pour tous où dominent silence, contemplation et beauté.
- au lancement d'entreprises dans des domaines en pleine expansion (la construction d’habitats écologiques en bois) ; en ces temps de crise, ce projet procurera du travail à plusieurs entreprises et leurs salariés.
Merci d’avance de votre générosité.
Père Marie-Michel Hostalier
Fondateur et Prieur
POUR EN SAVOIR PLUS
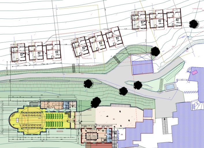
Quoi : Plan d’ensemble du projet :
Le hameau du Pradier avant réalisation du projet
En noir les bâtiments existants.
Le grand bâtiment du bas abrite les cellules des sœurs, les chambres pour l’accueil, et des locaux communs : le réfectoire, la cuisine, la buanderie, la bibliothèque, quelques bureaux. Le bâtiment du haut au centre comprend les cellules des frères et la chapelle actuelle.
Le projet :
9 ermitages, une petite église, une salle d’accueil et de conférence
Reconstitution numérique du projet
Au nombre de neuf, les ermitages sont destinés aux religieux de la communauté. Nous envisageons, lorsque ces travaux seront terminés, d’en construire quelques-uns destinés à toute personne désirant vivre un temps de retraite et de solitude, de repos, de paix, de prière et de ressourcement.
Les ermitages des Soeurs
Les ermitages des frères
Leur plan incarne la vie que nous désirons y mener. Nous sommes appelés non à y faire des séjours ponctuels, mais à y vivre en permanence, d’où la nécessité d’une surface minimum avec sanitaires et petite cuisine. Leur surface de 36 m2 se répartit entre :
- un petit oratoire, ou Horeb, lieu de la prière
- un biblium, lieu consacré à la lecture et la méditation de la Parole de Dieu, la Bible
- une cella, ou cellule : lieu de travail, d’étude
- un quies : le lieu du repos
- des sanitaires et petit coin cuisine pour les temps de solitude plus prolongés.
Ils sont entourés d’un petit jardin, propice à la méditation et à la contemplation face à la beauté de la création.
Comment ?
Nous voulons nous inscrire dans une dynamique de protection de l’environnement, tout en répondant au mieux à nos besoins. Pour cela nous avons fait le choix :
de l’énergie solaire pour l’électricité et l’eau chaude, ce qui nous permet une plus grande autonomie : situés en montagne, loin des villes, les pannes d’électricité ne sont pas rares en hiver… De plus, nos ermitages sont chauffés par de petits poêles à bois, que nos forêts alimentent pour un moindre coût.
du bois pour la structure des ermitages :
- nos terrains de montagne sont très en pente : le bois est un matériau léger qui s’y adapte mieux. De plus l’accès par la petite route n’étant pas facile, le bois nécessite des chargements moindres facilitant le transport lors des constructions
- les fibres qui composent le bois lui donnent des propriétés de résistance qui le rendent incontournable dans la conception des structures architecturales. Le bois est un matériau facile à travailler, qui se débite ou s’assemble facilement, réduisant considérablement les temps de chantier.
- le bois est également d'une grande beauté naturelle, rendant inutiles des finitions telles que les peintures. Sa couleur naturelle, chaude et apaisante, se prête parfaitement à notre projet orienté vers la paix et la prière.
- c'est par nature un matériau qui résiste à la déperdition de chaleur, les structures qui en sont composées sont donc des systèmes moins sujets aux ponts thermiques que d’autres structures en béton ou métal (le bois est 15 fois plus isolant que le béton à épaisseur égale). Les techniques de mise en œuvre choisies tirent parti de cette qualité naturelle pour offrir la possibilité d’atteindre de très hautes performances énergétiques. Cela est non négligeable étant donné les prix de l’énergie aujourd’hui, et notre situation en montagne aux hivers rigoureux.
- c'est un matériau pérenne et résistant : conçue et mise en œuvre correctement, une construction en bois se maintiendra en parfait état durant de nombreuses décennies.
- c'est une ressource disponible localement et qui se renouvelle naturellement dans nos forêts. Fourni par la filière de notre région, son exploitation participe à l’emploi local et à la mise en valeur de notre territoire.
- le bois est connu pour « piéger » le CO2 consommé par l’arbre pour sa croissance, et contribuer ainsi à lutter contre les dégâts environnementaux causés par le surdéveloppement de nos activités nocives pour l’atmosphère et le climat de notre planète.
Préfabrication des murs en atelier
Pose du premier mur
Montage de la structure bois
Charpente
Préparation des toitures
Connexion divine !
Avec qui ?
Notre choix vise aussi à soutenir une petite entreprise locale en éco-construction : Noé éco-habitat.
Cette option nous permet de réduire notablement le coût des constructions en participant au chantier, ainsi que nos amis venant ponctuellement nous y aider.
Tous au chantier !
Soeur Marie-Elisabeth au travail sur le toit
Frère Séraphin au réseau divin
Pose des plafonds
Père Marie-Van à l'isolation
Par tous les temps
Où en sommes-nous ?
6 ermitages sont déjà réalisés.
Il en reste donc trois à construire, d’ici l’été 2017. Leurs fondations sont déjà réalisées.
A quoi serviront les fonds collectés ?
Le budget global d’un ermitage est de 68 900 €uros et se répartit comme suit :
- Structure bois, isolation, charpente, toiture et couverture, finitions bois intérieures : 36 000 €uros
- Maçonnerie (réseaux eaux pluviales et eaux usées, isolation des sols et dallage, faïences salle de bain…) : 11 000 €uros
- Menuiseries : 6 000 €uros
- Façades : 6 000 €uros
- Electricité : 2 600 €uros
- Chauffage bois (poêle et cheminée) : 2 300 €uros
- Plomberie : 5 000 €uros
Actuellement, nous disposons déjà d’environ 23 000 €uros. Il nous reste donc 45 000 euros à trouver.
C’est pourquoi nous faisons aujourd’hui appel à votre générosité !
Au cas où les sommes collectées dépasseraient ce que nous espérons, l’argent sera gardé pour la construction des ermitages suivants.
Ils soutiennent notre projet :
- Mgr Pierre-Yves Michel, notre évêque (diocèse de Valence)
- Mgr Dominique Rey, évêque de Fréjus-Toulon
- Le Père Abbé Dom Eric Antoine, et les moines de l’Abbaye d’Aiguebelle (Drôme)
- Le Père Abbé Dom Hervé Courau, et les moines de l’Abbaye Notre Dame de Triors (Drôme)
- Le Père Daniel-Ange, fondateur de l’école internationale « Jeunesse-Lumière »
- Le Père Michel-Marie Zanotti-Sorkine, chapelain du Sanctuaire de Notre-Dame du Laus
- Le groupe de Pop-louange « Glorious »
- Le professeur Henri Joyeux, Cancérologue
- Eric Berman, PDG de l’entreprise de publicité « Together » sur Paris et Lyon
- Antoine Couloudon, PDG de l’entreprise « New-Zealand » sur Lyon
- Jean-Claude Didelot, PDG des éditions du Jubilé-Le Sarment, Fondateur et ancien Président de l’ONG « les enfants du Mékong » …
- et beaucoup d’autres…
Pour suivre l’avancement du projet, rendez-vous sur notre site internet
Adressez-vous à sœur Marie-Elisabeth, chargée du suivi du projet
Adresse : Carmel de Marie Vierge Missionnaire, Le Pradier, 26220 Teyssières.
Contact : 04 75 46 37 49. marieelisabeth@cmvm.net